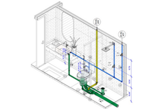
LBT বিল্ডিং ইনফরমেশন মডেলিং (বিআইএম) প্রযুক্তি ব্যবহার করে উন্নত মেকানিক্যাল, ইলেকট্রিক্যাল ও প্লাম্বিং (এমইপি) ডিজাইন প্রদান করে। আমাদের সমাধানগুলি শক্তি দক্ষতা, খরচ অপ্টিমাইজেশন এবং স্থাপত্য ও কাঠামোগত সিস্টেমের মধ্যে নিখুঁত সমন্বয় নিশ্চিত করে।
কেন LBT-এর এমইপি বিআইএম ডিজাইন বেছে নেবেন?
✔ দ্বন্দ্বমুক্ত ইনস্টলেশন: ৩ডি সমন্বয়ের মাধ্যমে ডাক্ট, পাইপ ও ক্যাবলের মধ্যে সাইটে দ্বন্দ্ব রোধ
✔ এনার্জি মডেলিং: বিআইএম ভিত্তিক বিশ্লেষণে এইচভিএসি লোড ১৫-২৫% কমায়
✔ কোড কমপ্লায়েন্স: ডিজাইন বিএনবিসি, এএসএইচআরএই ও এনএফপিএ মানদণ্ড পূরণ করে
✔ প্রিফ্যাব প্রস্তুতি: মডুলার কনস্ট্রাকশনের জন্য শপ ড্রয়িং
✔ লাইভ খরচ ট্র্যাকিং: রিয়েল-টাইমে উপকরণের পরিমাণ নির্ধারণ
প্রতিটি ডিজাইনে সৃজনশীলতা
গ্রাহক অসন্তুষ্ট হলে অগ্রিম অর্থ ১০০% ফেরত।
সময় এবং ব্যয় সাশ্রয়।
সময়মতো প্রকল্প সম্পন্ন করা।
বিনামূল্যে সাইট সার্ভে।
২৪/৭ গ্রাহক সেবা এবং পেশাদার পরামর্শ।
আমাদের এমইপি বিআইএম ডেলিভারেবলস
আমরা শুধু এমইপি সিস্টেম ডিজাইন করি না – আমরা বিল্ডিং ইন্টেলিজেন্স ইঞ্জিনিয়ার করি
| Item No. | Electrical Drawings | Plumbing and Sanitary |
|---|---|---|
| I | Main box and DB box position | Kitchen and toilet arrangements |
| II | Cut out arrangement | Pipe outlet, Duct position |
| III | Wiring layout plan | Typical floor to floor pipe connections |
| IV | Light, Fan, AC, Wall light, Spot light position | Pit position, Waste water disposal arrangements |
| V | Dish and Telephone wire layout | Rain water discharge |
| VI | Wiring layout pla | Sewerage Line |
| VII | Circuit Diagram | Rain Water line |
| VIII | Substation | Waste water line |
| IX | Solar panel | Inspection pits |
| X | Emergency backup details | Drainage system |
| XI | Lift Machine room | - |
| XII | Substation/Generator room | - |
| XIII | Lift room | - |