লাক্সারি বিল্ডিং টেকনোলজি (LBT) আধুনিক ও নান্দনিক আর্কিটেকচারাল ডিজাইন সেবা প্রদানের মাধ্যমে বাংলাদেশে লাক্সারি বাড়ি নির্মাণের ক্ষেত্রে নতুন মাত্রা যোগ করেছে। আমরা ক্লাসিক্যাল এবং মডার্ন লাক্সারি ডিজাইনের সমন্বয়ে অনন্য স্থাপত্য শৈলী তৈরি করি, যা ক্লায়েন্টদের স্বপ্ন ও চাহিদাকে প্রতিফলিত করে। আমাদের ডিজাইন সেবাগুলোতে উন্নত BIM (Building Information Modeling) প্রযুক্তি ব্যবহার করা হয়, যা নকশার নির্ভুলতা এবং নির্মাণ প্রক্রিয়ার দক্ষতা নিশ্চিত করে।
কেন LBT-এর আর্কিটেকচারাল BIM ডিজাইন বেছে নেবেন?
আর্কিটেকচারাল ডিজাইন শুধু একটি বিল্ডিং তৈরি করার প্রক্রিয়া নয়, এটি একটি সুন্দর, টেকসই ও আরামদায়ক বাসস্থান গড়ে তোলার শিল্প। লাক্সারি বিল্ডিং টেকনোলজি (LBT) ১০ বছরেরও বেশি অভিজ্ঞতাসম্পন্ন একটি দক্ষ ও উদ্যমী টিম নিয়ে কাজ করে, যারা আপনার স্বপ্নের বাড়ির জন্য নিখুঁত ও কার্যকর স্থাপত্য সমাধান দিতে প্রতিশ্রুতিবদ্ধ।
প্রতিটি ডিজাইনে সৃজনশীলতা
গ্রাহক অসন্তুষ্ট হলে অগ্রিম অর্থ ১০০% ফেরত।
সময় এবং ব্যয় সাশ্রয়।
সময়মতো প্রকল্প সম্পন্ন করা।
বিনামূল্যে সাইট সার্ভে।
২৪/৭ গ্রাহক সেবা এবং পেশাদার পরামর্শ।
আর্কিটেকচারাল BIM ডিজাইন সার্ভিসের বিস্তারিত
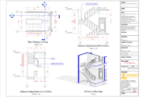
BIM-এর মাধ্যমে বিল্ডিংয়ের ডিটেইল্ড 3D মডেল তৈরি করা হয়, যা ডিজাইনের সমস্যা আগেই শনাক্ত করে এবং সঠিক প্ল্যানিং নিশ্চিত করে। BIM সফটওয়্যার স্বয়ংক্রিয়ভাবে ফ্লোর প্ল্যান, সেকশন ও এলিভেশন জেনারেট করে, সময় ও শ্রম বাঁচায়
| Item No. | Description |
|---|---|
| I | Perspective view |
| II | General Note |
| III | Floor Plan Layout |
| IV | Working Details |
| V | Furniture Layout Plan |
| VI | 3D Furniture Layout Plan |
| VII | Surface Details |
| VIII | 3D View Surface Details |
| IX | Celling Layout Plan |
| X | Celling 3D View |
| XI | 4 Elevation's 3D View |
| XII | 3 Cutting Section Details |
| XIII | 3D View Details |
| XIV | Veranda Details |
| XV | Stair Details |
| XVI | Kitchen Details |
| XVII | Toilet Details |
| XVIII | Architectural Cullum Details |
| XIX | Balcony sweep details |
| XX | Gate Details |
| XXI | Door Details |
| XXII | Door Phase Details |
| XXIII | Window Details |
| XXIV | Window Phase Details |
| XXV | Grill Details |